Year 7 2026 Parent Information Evening, 7.00 pm, LHC
Wednesday 19 November
VCAA exams conclude
Senior Play auditions
Thursday 20 November
Senior Play auditions continue
Friday 21 November
Year 12 Valedictory Dinner, 7.00 pm, Marvel Stadium
Monday 24 November
Year 8 Camp
SmartStart continues
Wednesday 26 November
Year 8 Camp returns
Years 10 and 11 Mass and Awards
Years 10 and 11 students final day (1.00 pm finish)
Thursday 27 November
Sion One Morning
Year 7 Horizons Program
Friday 28 November
Year 7 2026 Orientation Day
Year 7 Horizons Program
Saturday 29 November
French Exchange departs
From the Principal
Principal's Message
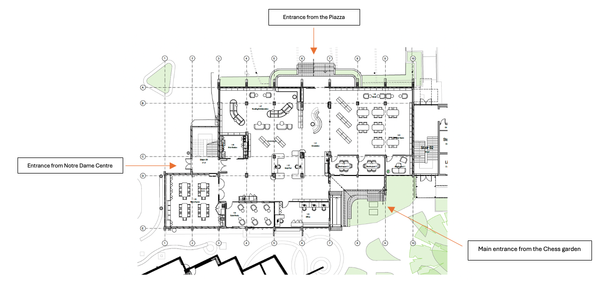
Final Stage of the College Masterplan
I am pleased and excited to inform the College community that the next stage of the College masterplan is about to commence. With the endorsement of the College Board of Directors and after a rigorous tender process, we have recently engaged Dimpat Commercial Pty Ltd to undertake the refurbishment of our former Science wing into a new Learning Resource Centre.
The design of the centre has been informed by careful research into how libraries meet the contemporary and evolving needs of learners and input was also sought from students, staff and our LRC team.
Located in the heart of the College, the centre will provide expanded spaces for focused learning, research, reading, independent study, collaboration and creativity. Located next to the piazza, the centre will also provide for social activities that we hope will encourage engagement and enhance student wellbeing.
Seating will be flexible and shelving conducive to creating an open and welcoming environment. Students will also benefit from the increased access to technology, in particular within the makerspace area.
Dimpat will begin the refurbishment on Thursday 20 November with much of the remainder of this year devoted to demolition. Term 1 will see the new fit out installed and we hope to take possession early Term 2. Once completed, the learning resources within our current LRC will be moved and once this transition is complete, we will begin to see the decommissioning of the demountable which has served us well in the last few years. After the demountable is removed, work will begin to restore the relevant portion of the College oval to its original state.
This final stage of the masterplan was shaped by an extensive consultation process that began in 2018. From the outset, our vision for the College was built on the belief that creating beautiful, purpose-designed spaces for students and staff would greatly enhance learning, teaching and wellbeing. Feedback from our community already affirms this vision, and I am confident that these new opportunities will continue to enrich the experience of all who learn and work at Our Lady of Sion College in the future.
Please click here for a short Fly Through of the Learning Resource Centre.
The floor plan below provides an overview of the centre.
Final Days for our Senior Students
The last fortnight has provided all senior students with the chance to undertake VCAA and/or school based exams. It was evident that students approached this form of assessment calmly and it is our hope that they have tried their best in their preparation and their responses.
While most Year 12 students have now completed their exams, Language students still have one or two days to go. Together with their parents/carers, we look forward to celebrating the end of their secondary education with the Class of 2025 at our Valedictory evening on Friday 21 November.
I also wish current Year 10 and 11 students all the very best as they begin the SmartStart program and their 2026 VCE and VCEVM studies next week. On their final day, Wednesday 26 November, I look forward to gathering with them for our end of year Mass and Awards ceremony. I will also take this opportunity to thank and farewell them for the final time.
With every blessing for the fortnight ahead.
Tina Apostolopoulos
From the Deputy Principals
Deputy Principal Faith and Mission – Anna Gionfriddo
Preparations are currently underway for our end-of-year Masses. The Years 10 and 11 Mass will be celebrated on their final day, Wednesday 26 November,
and the Years 7 to 9 Mass will take place on Friday 5 December, with a special focus on the Season of Advent.
These Masses will be joyful celebrations of all that our students have accomplished throughout the year, whilst also offering an opportunity to reflect on how they can make a difference to others this Christmas.
As a Catholic and Sionian school we are called to live out our vision and mission to sow the seeds of hope and to have a commitment for justice. Over the past few weeks, our students have been praying and reflecting during Chapel on what it means to be a College community that is called to care, to look beyond oneself so that actions lift-up the poor, comfort the broken, and help to ensure that God’s love is reflected in the world.
During the offertory at these masses, bags filled with donated toiletry items will be brought forward and then will be given to St Vincent de Paul Society Box Hill, in support of their Christmas Appeal. This act of giving will be a way for our students to live out the Gospel call to serve others and to help bring hope for those most vulnerable in our community.
Wishing all members of the College community many blessings.
Deputy Principal Learning and Teaching – Allison Stott
Exams and SmartStart for Years 10 and 11
As we conclude the exam program for Years 10 and 11, the students should be congratulated for the way that they have approached this form of formal assessment. There is no doubt that studying for exams, and that feeling like a whole semester of learning is resting on a single assessment, is not a comfortable feeling. Well done to students who saw the challenge and worked through it, as well as to students and families that recognised when that stress moved into something negative and asked for assistance. This is how we grow.
Students will receive their exam feedback during a dedicated session within SmartStart. During this session, students will be asked to think about the goals that they set for themselves at the conclusion of Semester 1, and how they changed as a result of this, and then think about what behaviours could have brought them even more success in preparation for 2026.
The SmartStart timetables will shortly be released to students.
Years 7 to 9 Assessment
Likewise this is a busy time of year for our 7 to 9 classes as they finish the final units of work, submit assessments and complete tests. Again, at times this can feel like a lot of work and be really overwhelming. Please be assured that the subject teachers, Homeroom teachers and WAGLs are here to support students to plan their time, to meet their goals, and to experience success. Please encourage students to seek support if they feel that they have too much happening.
2026 Learning Resources
As families are aware, the College has changed providers of learning resources to Box of Books. Families will soon be sent a link allowing them to set up profiles and access the resources. As well as the really efficient digital platform with enhanced data and usability for teachers and students, a change that families will notice includes a streamlining of the payment processes. For resources that are not provided directly by Box of Books, families will make a ‘levy’ payment that will allow the College to purchase the resource on your behalf. This means that each family will only need to go to one place to procure all of the resources needed.
As always, staff have reflected on the learning resources needed for students at each level and for each subject. Some of the teams have requested that students have access to the hard copy books to support learning in the classroom. This is designed as a pedagogical strategy to support focus and to make the activities hands-on.
Family feedback on Box of Books will be called for early in 2026, as we want to ensure that we are providing the best service possible.
Subject Selection Changes
As 2026 subjects are being released, it is normal that some students wish to make changes. As the timetable and staff needs are designed around the initial selections, and while we do our best to accommodate different requests, not all changes can be made. If your student would like us to consider a change, please get them to subject the Change of Subject Request form, which is available on SEQTA under ‘Forms and Info’.
BYOD
Year 9 Families will have received information on the return/buy-out of the iPads as they move into Year 10. A reminder to other families that from 2026, students in Years 8-9 who want to use a laptop device instead of their iPad can do this, however the laptop will need to meet specific requirements and the iPad must still be available for the students to use. Again, the JB HiFi portal is available for all families to purchase a suitable device (and accessories). Families simply need to go to https://byod.jbhifi.education and enter the password Sion26. Please note there is no obligation for families to do this.
Acting Deputy Principal Student Wellbeing – Paul Kerr
Finishing Strong and Celebrating the Journey
Term 4 is always a time of assessments, creativity and a chance for celebration. This week’s Year 7 Spring Concert and the Sion First Concert are perfect examples of how far our students have come. Their growing confidence, skill and joy in performing remind me of what learning is really about.
As we move into the final weeks of the school year, there’s a different feeling in the air. Year 10 and 11 examinations are almost complete, junior classes are finalising their last assessments, and the anticipation of holidays is building. It’s a time to pause, take a breath and appreciate all that has been achieved.
This year has been one of tremendous growth, academically, personally, socially and spiritually. Our students have learned new things, overcome challenges and discovered more about themselves. Our staff have continued to guide, support and inspire, and our families have walked alongside us every step of the way. Every success, big or small, has added another bright chapter to the story of their year.
We encourage all students to take a moment to reflect. What was a highlight? What challenge turned into a breakthrough? Who helped along the way? Reflection allows us to recognise progress, effort and the relationships that make school life meaningful.
The final weeks still matter. SmartStart in the senior years is a wonderful chance to finish well and make strong connections to the learning that awaits in 2026. Keeping routines steady, arriving ready to learn and making the most of every opportunity will ensure everyone ends the year on a high. Consistency and effort now become the habits that build confidence for the year ahead.
As students prepare to move into a new year level, the lessons of 2025 stay with them, resilience, teamwork, curiosity and a common theme of kindness. The way we finish this term will shape how we approach next year.
As Year 9 student Sienna P (9 White) put it so well: This year taught me that showing up every day makes the biggest difference.
Every one of us has learned something along the way. What would your one thing be?
In Remembrance
Our particular thoughts and prayers go to Alessia G (8 Gold) on the recent passing of her grandfather.
We remember Alessia and her family in a special way at this sad time.
Eternal rest grant unto him, O Lord, and may your perpetual light shine upon him. May his soul and the souls of the faithful departed rest in peace, Amen.
Year Level News
Year 10 – Adam Rieusset, Wellbeing and Growth Leader
Year 10 students should all be very proud of how they have conducted themselves during the Semester 2 exam period. At each exam we have seen calm, focused students, who have arrived on time and completed their exam to the best of their ability. The skills, habits and behaviours that they have continued to reflect and develop throughout this period have been clear to see.
We all know that exams (tests, interviews, job applications, starting a new task) can be a time where we become nervous. And that’s ok, because nerves show that we care. The way in which the year 10s have navigated these nerves has been good, and I want you to know that you should be proud. In the coming weeks, results will be shared, both % grades for exams and tasks completed, along with study habits, behaviours and attitudes. When they are shared, I encourage students to reflect upon the big picture, what are all the results telling you. Then ask, what are one or two things that can be put in place to support Year 11 being a better year.
Some key dates I’d like to remind you of are:
Monday 17 November - Staff Correction Day (student free day for the College)
Tuesday 18 - Tuesday 25 November - Year 10s will undertake their SmartStart program. During this program the students will commence their 2026 academic work
Wednesday 26 November - final day for Year 10 students.
Be proud Year 10 community, the students have done exceptionally well over the past two weeks.
Year 9 – Jennifer Tilley, Wellbeing and Growth Leader
This week the Year 9s participated in the long-awaited Year 9 Netball Competition. During Pastoral the Homeroom teams came together for short but intensive games that saw students participating on the court or cheering on their Homeroom team. A huge thank you to our SRC team for the idea, fixture and being so flexible with some last-minute changes and to Sienna P (9 White), Mabel D (9 Blue), Lucy M (9 Blue) and Molly M (10 Silver) for being our umpires.
Across the year the Year 9 Homerooms have been working towards the completion of our Year Level Bingo. This initiative allows the Homeroom to consider and celebrate the various opportunities for connection both within their Homeroom and in the College community, and includes activities such as a shared Homeroom morning tea, having Homeroom outside, donating to Project Compassion and being on time for City Experience. Bingo has taken place across the year, with the final square of three Homerooms being completed through participation in the Netball Competition.
Congratulations to 9 Silver, White and Gold for completing their Bingo Cards! We look forward to celebrating with you in the coming weeks.
I would also like to acknowledge the focus and academic dedication that the Year 9s have shown in preparing for their various assessments that are taking place over the next few weeks. It has been wonderful to see students utilising further opportunities for study and revision. We have reminded the Year 9s of the expectation to continue to show this dedication and engagement as the term progresses, with still much learning to take place.
Year 8 – Chris Wilkes, Wellbeing and Growth Leader
During our Pastoral lesson, our focus was preparing for the most exciting event of the year….CAMP! Below are some key points that were discussed, so please continue these conversations at home to maintain a positive attitude so that camp is a wonderful experience.
Part of the permission forms that were signed and returned, acknowledge that if required, a student will be sent home from the camp for not following the expectations/instructions of school or camp staff. We strictly forbid any phones so your support would be greatly appreciated to ensure these are not brought on camp. These expectations are predominantly in place to ensure that everybody is safe and able to have a great time!
'Be a lobster' – we will watch a video by Rabbi Twerski, in which he outlines the process for a lobster to grow. They are a soft animal with a hard shell, that must leave their current shell in order to cast a new shell. During this stage they are vulnerable but it is a crucial step for them to grow. We can compare this with the idea that through pushing ourselves outside of our comfort zones, into the stretch/growth zone, we are able to grow. It is a great chance to make new friends rather than sticking to those they already have. It also helps in the preparation for Year 9 where they won’t be with their Homerooms for most of the time but in electives with a variety of different students.
Nerves/fear/anxiety and excitement feel the same – we will compare the physical responses we have to these different feelings and see that there are many similarities. We will look at the key difference as being our mindset, moving from focusing on the threats/things that could go wrong to the opportunities. Studies have shown that by simply saying the words 'I am excited' rather than approaching a challenge with fear or trying to just calm down, we are on average more successful in completing that task. How to Turn Anxiety into Excitement
Finally, please check the ‘what to bring’ list to ensure that all necessary items are packed. This was included with the permission through EdSmart and a copy has been placed on the year level Google Classroom for students, along with some basic rules and expectations. If you have any questions or concerns, please reach out to your daughter’s Homeroom teacher or myself and we would be happy to help out!
Year 7 – Jade Goss, Wellbeing and Growth Leader
The energy in Year 7 has been electric these past few weeks as our Homeroom vs Homeroom Volleyball Tournament has taken over Friday lunchtimes! The courts have been alive with friendly rivalry, cheering supporters, and plenty of laughter as teams battle it out. From soaring serves to incredible saves, every game has shown not only the great level of participation within our year levels, but also the teamwork and encouragement that make our community so special.
Alongside the excitement of volleyball, we’re also looking ahead to 2026 student leadership opportunities. The application process is well underway, offering students the chance to step forward, share their ideas, and contribute to shaping our College community in new and inspiring ways. Leadership at our school isn’t just about titles, it’s about service, collaboration, and setting a positive example for others. The year level has heard from those wishing to represent the cohort as part of the Student Representative Council, with all students applying for leadership positions completing their interviews over the next few weeks. It has also been fantastic to see students step outside their comfort zone in applying for roles that they feel passionate about, and showing their fantastic growth this year.
With only three more weeks of classes remaining, the Homeroom teachers and myself will begin preparing our Year 7s for expectations in Year 8, as well as how their current organisation, resilience and kindness skills will set them up for success in 2026.
Learning Area News
Legal Studies Excursion – Allan Kerr, Humanities Learning Leader
Order! Order! Daughters of Sion in the court!
On Wednesday 15 October, the Year 11 Legal Studies students led by the unimpeachable Ms Carolyn Anderson and assisted by Ms Stafford had the opportunity to visit the Melbourne County Court as part of their studies into the Australian legal system. The excursion provided a fascinating insight into how the court operates on a daily basis, allowing students to see the law come to life beyond the classroom.
One of the highlights of the day was meeting Judge Gucciardo, who generously took the time to speak with the students about his role and experiences in the legal system. Students were able to ask questions and discuss topics such as the complexities of bail and judicial decision-making. I really enjoyed hearing his views and opinions on the legal system, especially on bail. Overall it was an awesome day!Ella P (11 Gold).
Students were also fortunate to observe a live court proceeding, witnessing the formal exchanges between the prosecution, defence, and judge. Seeing the accused, the prosecution standing up and saying ‘objection’, and talking to the barrister afterwards was such an eye-opening experience.Charissa V (11 Silver).
The group toured several levels of the court building, gaining an appreciation for its structure and the different types of cases heard there. I really liked how we were able to sit in on an active case and pay close attention to the decisions made and what the judge said.Alannah M (11 Purple).
The excursion was both educational and inspiring, giving students a real-world perspective on the justice system they’ve been studying in class. It was such a success that the following day, County Court Education Liaison officer, Tyanna Bennet, testified to Ms Anderson that ‘Your students were extremely respectful to Judge Gucciardo, his Honour’s staff, myself, and other court users and carried themselves with maturity and awareness of the environment. They were extremely engaged in the observation and discussion with his Honour and asked insightful questions. I’m sure you and the school are very proud of them, and I hope they are proud of themselves. It is also a real credit to you as their teacher.’
DOHSA students – Melbourne Zoo STEM Excursion – Francis Nguyen, Science Learning Leader
Students recently took part in an engaging excursion where they explored the real-world challenges faced by Wildlife Conservation Scientists working with Australia’s threatened species. Throughout the day, they gained valuable insights into how scientists use various technologies to locate, track, and monitor wildlife, while also discussing the benefits and limitations of these tools in the field.
Using design thinking, students collaborated to develop creative and practical solutions to improve the ways in which scientists protect and study our native animals. The experience provided a meaningful connection between classroom learning and the important work being done to conserve Australia’s unique biodiversity.
Student Reflection
Throughout this trip with DOHSA, I got to immerse myself in the exhibitions and learnt about how researchers track, locate and monitor animals. Along with this, I collaborated with my friends and people I have not met before to form new ways to improve how the researchers interact with endangered animals. I had lots of fun on this trip and I got to make new friends with people in other year levels while learning about our ecosystems in a more hands on form.Sophia Z (8 Purple)
Co-curricular News
Music – Martin Macaulay, Head of Music
Victorian Schools Music Festival – Year 7 Bands representing Our Lady of Sion College
Congratulations to the 111 members of our two Year 7 Concert Bands (the Monday morning group and the Tuesday afternoon group), and members of the Sion First Year 6 Music program, who performed at the 2025 Victorian Schools Music Festival on Monday. The girls presented the repertoire that they have been working on in the magnificent Hawthorn Arts Centre. Students also benefitted from an on-stage tutorial with the adjudicator and got to listen to bands from other schools.
Year 7 Spring Music Concert
All Year 7 ensembles, small groups, and those Year 7s in Intermediate level ensembles performed at the annual Year 7 Spring Music Concert on Tuesday evening in the LHC. It was a celebration of the hard work the girls have done all year in their large ensembles and small tutorial groups.
Instrumental Music Private Tuition 2026
Enrolments are now open and available on-line for Instrumental Music lessons in 2026. All the details including fees, instrument hire charges and conditions are available here. Confirmation of enrolment needs to be completed here. Please note that charges will be applied to your College fees statement in early 2026. Address any enquiries to the Head of Music at: mmacaulay@sion.catholic.edu.au
Instrumental Music Lesson Scholarship Applications
A limited number of music lesson scholarships, lasting two years, will be made available to students currently in Years 7 and 8 for the following instruments:
Sion First Concert and 2026 Sion First Music Program
It was another spectacular evening at our 2025 Sion First Music Graduation Concert. 36 Year 6 Strings and Concert Band musicians performed beautifully, showcasing their developing talent and enthusiasm for music. Congratulations to all. We look forward to seeing your musical journey continue and flourish at Sion in 2026.
Sport – Liam Cox, Head of Sport
We are approaching the end of the regular season for GSV weekly sport with one more game left to go! We hope all our students enjoy their last matches while wishing all the best to our teams who are in the running for finals.
This week saw the conclusion of our Preseason Swim and Dive training sessions. I would like to give a big thank you to our diving coach Olivia for all her incredible work with our divers, as well as Mr Rieusset and Mr Armstrong for their effort in taking the swim squad through stroke correction this term.
GSV Term One Sport Sign Ups
Sign-ups for Term 1 GSV sport have now closed for 2026 Year 8 to 12. If your child has missed out, they can email sport@sion.catholic.edu.au by 3.00 pm on Monday 17 November.
2026 Year 7s will receive their opportunity to sign up for Orientation Day trials from Wednesday 19 November.
The GSV weekly sport trials dates this term are as follows:
Senior Trials
Monday 24 November, Afternoon
Intermediate Trials
Monday 1 December, Afternoon
Wednesday 3 December, Morning
Junior Trials
Friday 28 November, Afternoon - Orientation Day (2026 Year 7s Only)
Monday 1 December, Morning (2026 Year 8s Only)
Tuesday 2 December, Morning (2026 Year 8s Only)
Sport Leaders
We have seen a surge of applications for Year Level Sport Reps and Individual Sport Captains this year. It has been wonderful listening to students talk about why they are passionate about being a sport leader.
We would like to thank each and everyone of our students who has put their hand up to be a part of the sport leadership team.
Sporting Achievements
Women’s Artistic Gymnastics - Gabriela T (10 White)
Gabriela T (10 White) has spent the last few weeks in Europe, representing Australia in the Women's Artistic Gymnastics at the 29th International Tournament Combs La Ville in France and at the Gympies Gymnova Cup in Belgium.
Gabriela has kindly provided a reflection of her first international gymnastics tour:
Earlier this term, I had the incredible honour of representing Australia in Women’s Artistic Gymnastics at two major international competitions - the 29th International Tournament of Combs-la-Ville in France (1–2 November) and the Gympies Gymnova Cup in Belgium (8–9 November).
I left Australia on 26 October and trained at several incredible venues, including the National Institute of Sport in France, where I had the chance to practise alongside some of the world’s top gymnasts. Stepping into the gym each day, surrounded by athletes from different countries, was both exciting and inspiring.
Throughout the tour, I built lifelong friendships, learned from elite gymnasts, and even found time to explore some incredible landmarks, from standing beneath the Eiffel Tower in Paris to enjoying freshly made Belgian waffles in Brussels. Every day was a mix of hard work, laughter and discovery.
Looking back, this journey taught me invaluable lessons about resilience, discipline, teamwork, and self-belief. Wearing the green and gold for the first time on the international stage was truly a dream come true. It’s an experience I’ll treasure forever - one that continues to inspire me to keep learning, growing, and chasing my goals. Gabriela T (10 White)
2025 Athletics Victoria All Schools Week 2 – Erin M (11 White) and Sophie F (10 Red)
College Sport Captain Erin M (11 White) and Sophie F (10 Red) had a sensational result at Week 2 of the Athletics Victoria All School Track and Field Championships. Erin finished second in the U18m 3000m by 0.969 seconds behind first, while Sophie finished sixth in the U17 3000m.
Past Students kicking goals – Georgie B (Class of 2024)
We would like to congratulate past student Georgie on being selected in the 2025 AFL Players’ Association 22 under 22 Team.
Drama – Alex Bleazby, Arts Learning Area Leader
Senior Play Launch
The launch of the Senior Play was last week and I am pleased to announce that we will be performing "The Importance of Being Earnest" in May 2026! We were so pleased with the great turnout of students and the excitement in the room when the play was revealed! Auditions will be held in Smart Start for Years 9 to 11 who would like to be part of the cast and crew. Application forms will be due Friday 28 November. If you are interested in a crew or cast role please add yourself to the Google Classroom Code h2trywuk. As we are starting to look forward to the end of 2025, already within the Arts there are so many exciting opportunities being planned for 2026!
Visual Arts Competitions
This week it's all about the competitions with successes in and outside of the College!
As well as the 'House Mr Squiggle Competition' that was run as part of Creative Arts Week, we also ran a Mini Squiggle Competition where students were invited to take away a Squiggle to create their own artwork. We were blown away by the creativity in these entries. As well as receiving a House and Arts point towards their Colours totals this year we have decided to award a winner for Juniors and Seniors.
Pictured are the Mini Squiggle works of Eloise H (7 White) and Amy F (11 Gold). Congratulations to all students who showed off their creative flare!
A new competition that was added to the list this year was the ‘My Awesome Australian Portrait Competition’ and we entered ten Sion students. Two of our students were chosen to be a part of an online gallery of winning works.
Congratulations to Gemma K (8 Silver), Biyuan Z (7 Gold) and indeed to all students who put forward entries. We are reminded every day of the immense talent of our students and competitions like these allow us to share their gifts with a wider community!
Gemma K (8 Silver)Biyuan Z (7 Gold)
We are launching the Poster Competition for The Importance of Being Earnest. All students are invited to submit entries. Their artwork could feature on publicity material for the production. Submissions for the competition will be due to the Visual Arts Competition classroom by 2 March 2026. The Classroom Code is prgxaxa, you can find all of the details you will need to submit your entry there!
House and Student Leadership Coordinator – Kate Apostolopoulos
The school year's final House competition went out with a flourish of creativity as students gathered for the exciting 'MrSquiggle Competition', a brilliant collaboration between the Visual Arts Department and the House system!
Students split into their House groups and engaged in a series of fun and challenging artistic games, including the classic Pictionary, creative Mr Squiggle-style drawing, and the mind-bending Flipped Art challenge. Our talented Arts Department staff formed the judging panel and had the difficult task of assessing the many unique and interesting pieces produced.
It was inspiring to see the students’ incredible creativity shine, as well as their enthusiasm for teamwork. They worked together, offering great support to their fellow House members throughout the competition.
Congratulations to all who participated! In a closely fought contest, Lourdes House took the coveted 1st place prize, with Loreto House coming a very close second.
Rotary Four-Way Test Public Speaking Competition – Laura Malone, Public Speaking & Debating Coordinator
On Tuesday 11 November, Our Lady of Sion College was delighted to be part of the annual Rotary Four-Way Test Public Speaking Competition in Box Hill. Students were asked to write and present a speech around the Rotary Four-Way Test. The Rotary Four-Way Test guides the students to focus on an issue they are passionate about and that follows a set of four core principles:
Is it the TRUTH?
Is it FAIR to all concerned?
Will it build GOODWILL and BETTER FRIENDSHIPS?
Will it be BENEFICIAL to all concerned?
Representing our College with pride and confidence were Molly P (10 Purple), Kate B (10 Red), and Leticia G (10 Red). Each student delivered a unique and inspiring speech that captured both the spirit of the competition and the audience’s attention. Molly spoke on ‘The Power of Scouts’, exploring how teamwork and service can empower young people. Leticia’s speech, ‘The Illusion of Perfect’, offered a heartfelt look at the pressures of perfectionism.
Kate’s thought-provoking speech, ‘The Allure of Violence’, examined humanity’s fascination and romanticisation of conflict and aggression. With ten speeches presented throughout the evening, the standard was exceptionally high, but our Year 10 students rose to the challenge with enthusiasm and poise. I am thrilled to share that Leticia and Kate were recognised as runners-up, receiving a cash prize for their impressive efforts.
A huge congratulations to all three students for their dedication, courage, and willingness to put themselves forward.
Careers and Pathways – Brooke O'Hara, Coordinator
Students and families can find the fortnightly Careers newsletter here.
In this issue of the Newsletter there is information relating to:
Dates to diarise in Term 4 – Reminder of VTAC 2026 Upcoming Key dates, UCAT, GAMSAT and Pathways into Medicine webinar for students and parents/carers, 2025 Year 12 VTAC Change of Preference period
Careers Industry in the Spotlight – Digital Marketing
Things to Consider – 2025 VCE Results and ATAR: accessing your VCE results, 2026 Work Experience, University of Melbourne Narrm Scholarship Program, CAS Hawker Scholarship
Researching options – Women of STEM Scholarships 2026, Deakin University – New Law/Psychological Science Double Degree, UK Gap Year Program in 2027, ANU Tuckwell Scholarship 2027
Parent News
College Counsellor/Psychologist – Sofia Stagnitta
Wednesday 13 November was World Kindness Day, a global day that promotes the importance of being kind to each other, to yourself, and to the world. At Our Lady of Sion College kindness is grounded in the way students are encouraged to treat others, themselves and our land. Research has shown that young people believe kindness is vital to experiencing feelings of belonging, inclusion, care and healthy relationships. The key message here is that kindness makes us feel good. Kindness, both given and received, is essential for healthy wellbeing.
Dr Sophie Lea, the CoFounder of ‘Kind Schools’ created this model around ways to be kind:
Kind mind – Discover what assists your mind to switch off from life’s pressures and feel at peace
Kind heart – Reflect on what makes your heart feel full and enables you to develop deeper gratitude for yourself and others
Kind body – Do something that enables you to connect your physicality and allows you to enjoy the awesomeness of your body
Kind fun – Identify something that provides you with frivolous joy or laughter with others and do it – more than once
Kind giving – Do something kind for someone else and notice how it makes you and them feel.
You might find it meaningful to use these prompts to spark conversations about kindness with your daughters this week.
For more information, you can visit the links below: